bungalow met plat dak L160 - Bungalow Bouw Nederland

Ga naar de inhoud
Ontwerp Bungalow L-160


B160 levensloopbestendige bungalow plattegrond Staalframebouw Nederland
B160 levensloopbestendige bungalow plattegrond Staalframebouw Nederland
B160 levensloopbestendige bungalow plattegrond Staalframebouw Nederland
B160 levensloopbestendige bungalow plattegrond Staalframebouw Nederland
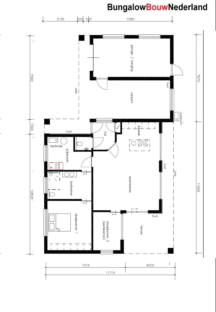
Onder ziet u een indeling van bovenstaand ontwerp. Het kan naar uw wens worden aangepast
B160 levensloopbestendige bungalow plattegrond Staalframebouw Nederland

Kosten ontwerp.

Wilt u meer weten over prijzen, ontwerp en bouwmogeijkheden stuur een mail voor meer informatie?   Stuur een mail!


Terug naar de inhoud