kosten levensloopbestendige bungalow C101 - bungalow bouw

Ga naar de inhoud
Ontwerp Bungalow C101

Effiecient ontwerp. Betaalbaar. Meerdere afmetingen geschikt voor CPO .  
BungalowBouwNederland levensloopbestinge onderhoudsarme woning type C101
BungalowBouwNederland levensloopbestinge onderhoudsarme woning type C101
BungalowBouwNederland levensloopbestinge onderhoudsarme woning type C101
BungalowBouwNederland levensloopbestinge onderhoudsarme woning type C101
BungalowBouwNederland levensloopbestinge onderhoudsarme woning type C101
BungalowBouwNederland levensloopbestinge onderhoudsarme woning type C101
BungalowBouwNederland levensloopbestinge onderhoudsarme woning type C101


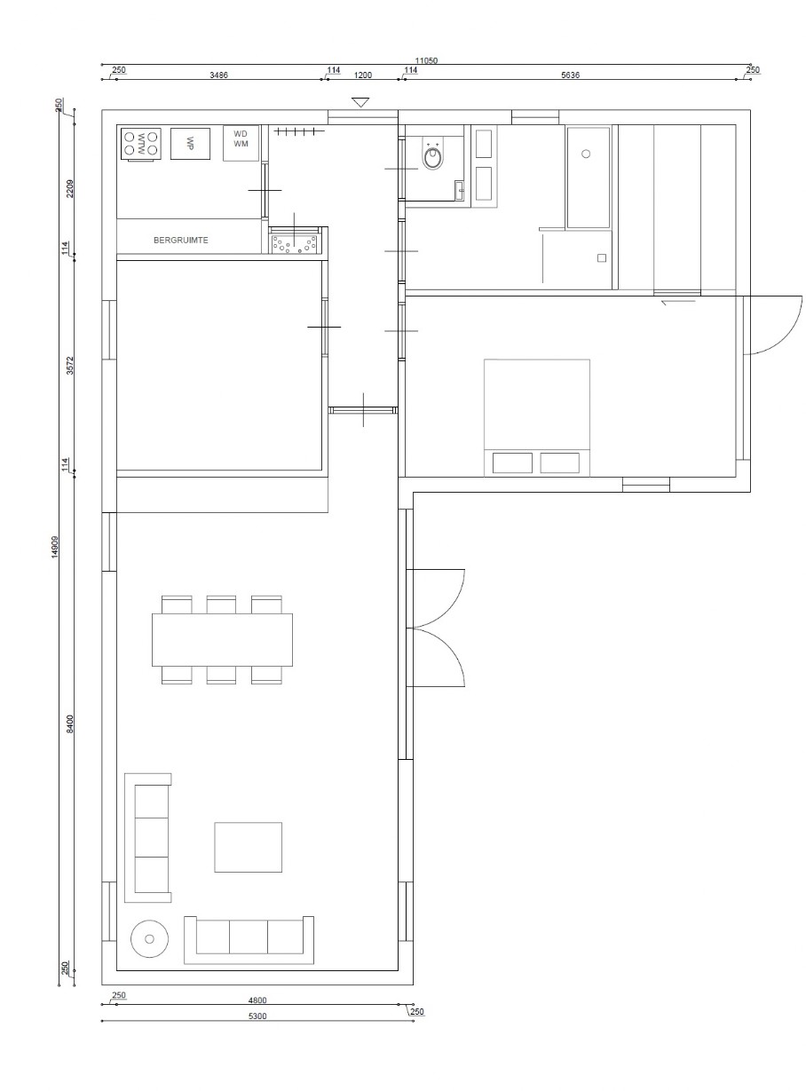
Onder ziet u de vaste indelingen van de efficiente bungalowserie C101


BungalowBouwNederland levensloopbestinge onderhoudsarme woning type C101
BungalowBouwNederland levensloopbestinge onderhoudsarme woning type C101
BungalowBouwNederland levensloopbestinge onderhoudsarme woning type C101
BungalowBouwNederland levensloopbestinge onderhoudsarme woning type C101
C101 A 79 m2 bungalow goedkoper bouwen met staalframe
C101 B 92 m2 bungalow goedkoper bouwen met staalframe
C101 C 98 m2 bungalow goedkoper bouwen met staalframe
C101 D 104 m2 bungalow goedkoper bouwen met staalframe
C101 E 116 m2 plattegrond bungalow goedkoper bouwen met staalframe
C101 F 134 m2 plattegrond bungalow goedkoper bouwen met staalframe
C101 G 142 m2 plattegrond bungalow goedkoper bouwen met staalframe

Kosten ontwerp.

Wilt u meer weten over prijzen, ontwerp en bouwmogeijkheden stuur een mail voor meer informatie?   Stuur een mail!


Terug naar de inhoud