kosten levensloopbestendige bungalow Lk136 - bungalow bouw

Ga naar de inhoud
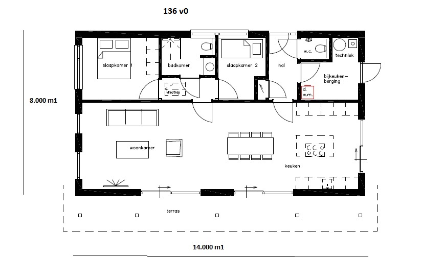
Ontwerp Bungalow LK-136  
onder ziet u 2 voorbeeld plattegronden
10 * 17 en 8 *14, deze afmetingen en indelingen zijn volledig aanpasbaar aan uw wensen
B136 v1 semibungalow kap schuindak levensloopbestendige woning staalframebouw
B136 v1 semibungalow kap schuindak levensloopbestendige woning staalframebouw
B136 v1 semibungalow kap schuindak levensloopbestendige woning staalframebouw
B136 v1 semibungalow kap schuindak levensloopbestendige woning staalframebouw
B136 v1 semibungalow kap schuindak levensloopbestendige woning staalframebouw
Ontwerp Bungalow LK-136  
onder ziet u 2 voorbeeld plattegronden 10 * 17 en 8 *14
deze afmetingen en indelingen zijn volledig aanpasbaar aan uw wensen
B136 v1 semibungalow kap schuindak levensloopbestendige woning staalframebouw
B136 v1 semibungalow kap schuindak levensloopbestendige woning staalframebouw

Kosten ontwerp.

Wilt u meer weten over prijzen, ontwerp en bouwmogeijkheden stuur een mail voor meer informatie?   Stuur een mail!


Terug naar de inhoud