kosten levensloopbestendige semi-bungalow H370 - bungalow bouw

Ga naar de inhoud
Ontwerp SEMI-Bungalow met verdieping H-370

H370 bungalowbouw nederland levensloopbestendig met verdieping staalframebouw
H370 bungalowbouw nederland levensloopbestendig met verdieping staalframebouw
H370 bungalowbouw nederland levensloopbestendig met verdieping staalframebouw
H370 bungalowbouw nederland levensloopbestendig met verdieping staalframebouw
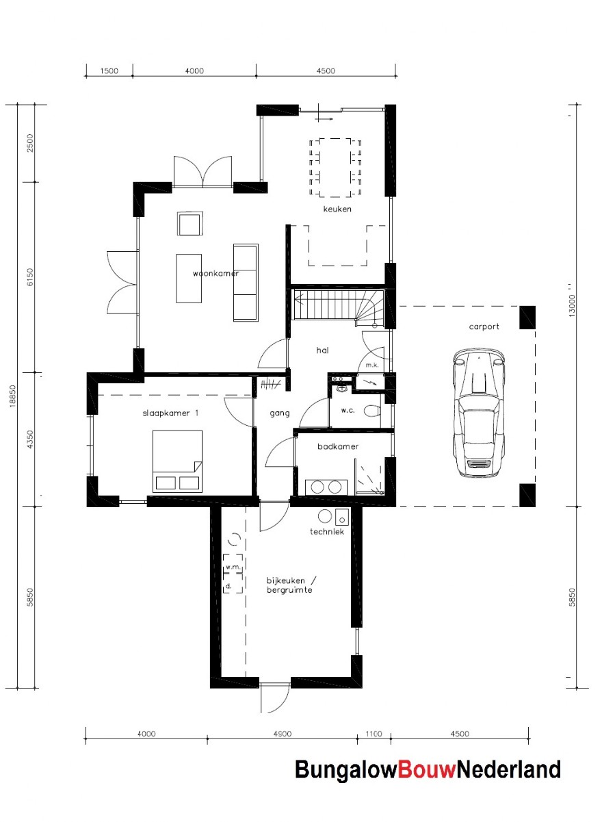
Onder ziet u een voorbeeld indeling van bovenstaand ontwerp. Het kan geheel naar uw wens worden aangepast.
H370 bungalowbouw nederland levensloopbestendig met verdieping staalframebouw
H370 bungalowbouw nederland levensloopbestendig met verdieping staalframebouw

Kosten ontwerp.

Wilt u meer weten over prijzen, ontwerp en bouwmogeijkheden stuur een mail voor meer informatie?   Stuur een mail!


Terug naar de inhoud