geschakelde woning GS 02-4 - bungalow bouw

Ga naar de inhoud
Geschakelde woningen: GS 02-4
2 gezinswoningen met verdieping in combinatie met 2 levensloopbestendige woningen
Bungalowbouw Nederland GS 02-04 geschakelde woningen meer generatie kangeroe
Bungalowbouw Nederland GS 02-04 geschakelde woningen meer generatie kangeroe
Bungalowbouw Nederland GS 02-04 geschakelde woningen meer generatie kangeroe
Bungalowbouw Nederland GS 02-04 geschakelde woningen meer generatie kangeroe
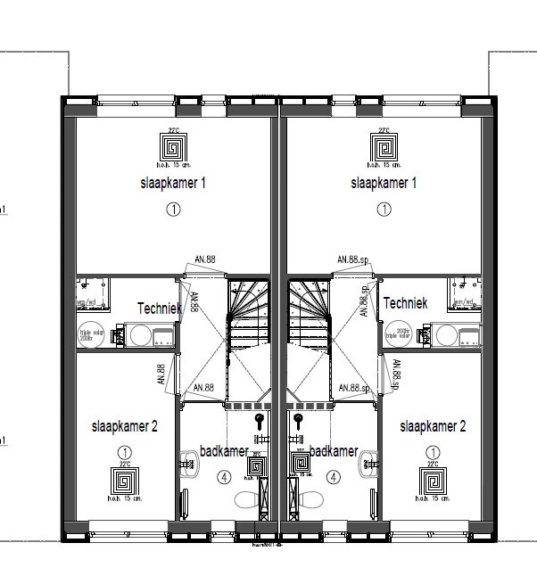
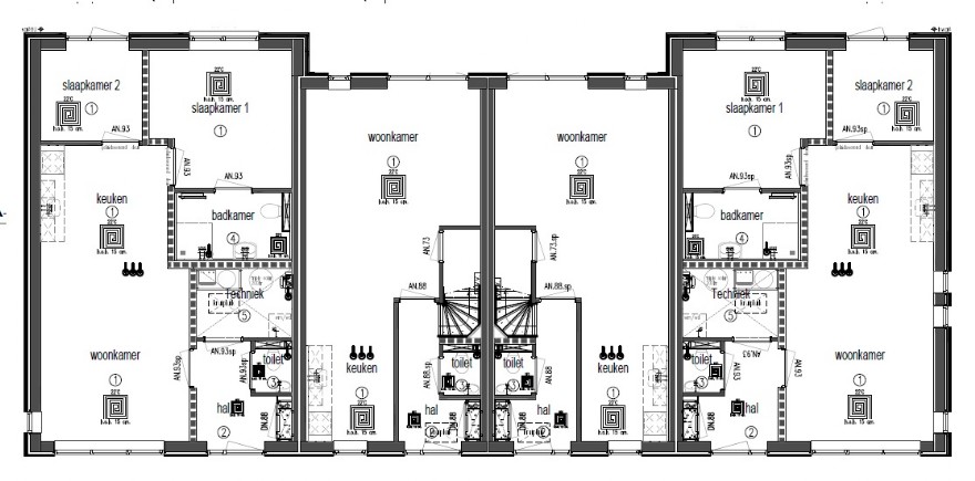
Onder ziet u een indeling van bovenstaand ontwerp. Het kan naar uw wens worden aangepast.
Bungalowbouw Nederland GS 02-04 geschakelde woningen meer generatie kangeroe
Bungalowbouw Nederland GS 02-04 geschakelde woningen meer generatie kangeroe

Kosten ontwerp.

Wilt u meer weten over prijzen, ontwerp en bouwmogeijkheden stuur een mail voor meer informatie?   Stuur een mail!


Terug naar de inhoud