Moderne villa met veel glas H-382




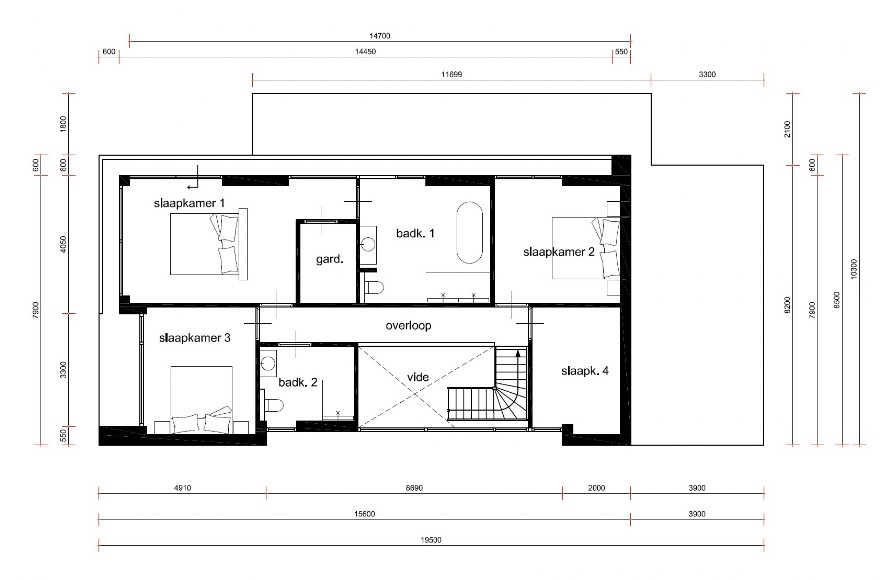
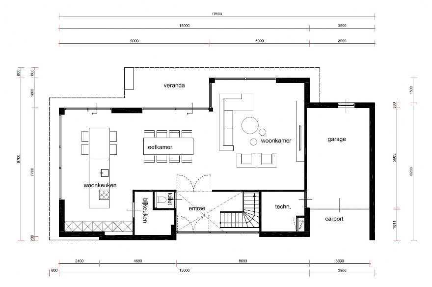
Onder ziet u een indeling van bovenstaand ontwerp. Het kan naar uw wens worden aangepast


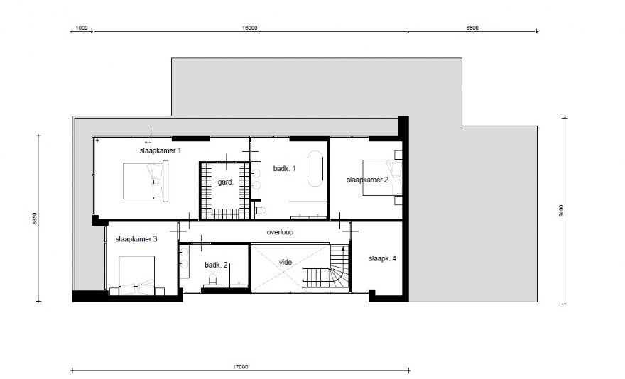
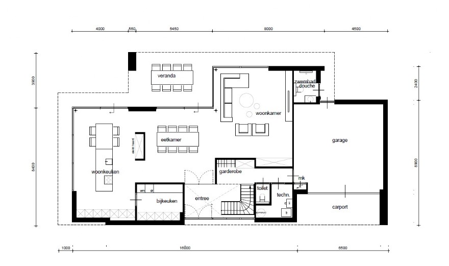
Onder ziet u een indeling van de XL versie van ontwerp H382. Het kan naar uw wens worden aangepast


Kosten ontwerp H381
Wilt u meer weten over prijzen, ontwerp en bouwmogeijkheden stuur een mail voor meer informatie? Stuur een mail!